今天分享的案例,家居面積120㎡,這樣的中戶,我們見過很多,但風格各不相同,根據屋主所言,設計的初衷是想要一個可以生活的家,有花有草,能完美融入鐘愛的原木元素,無需過多裝飾,舒服自然就好,這不也是很多人理想中的家嗎?一起來看看吧,屋主是怎樣布置的呢?
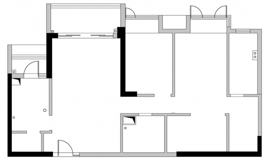
原始戶型圖
本案家居的原始戶型很規整,缺點是書房隱匿在角落,沒有單獨的采光結構,很常規的兩室兩廳,但隔墻稍多,各個區域空間缺乏銜接,整體欠缺連貫性,于是在家裝前期,屋主對格局做了一些調整。
整改后平面布局圖
戶型調整:
1:把原來擺放玄關柜的地方與廚房雜物間做了改動,拆除了隔墻,放置儲物柜和雙開門冰箱,增加了收納空間。
2:餐廳區域移除了一部分公衛墻體,打造了一個內嵌餐邊柜,提高了空間利用率。
3:拆除了部分電視背景墻,空缺處設計成吧臺與廚房相連,互動起來很方便,充滿情調。
4:將陽臺納入客廳,延伸了空間視覺感受,戶型更通透。
5:把主衛、書房、衣帽間與主臥相連通,打造出一個多功能超豪套間,滿足屋主的使用需求。
面積:120㎡
戶型:三室兩廳兩衛
常住人口:3人,小公主2歲
裝修成本:13萬
客廳
客廳整體以純白為主色調,沒有多余裝飾,地面通鋪木地板,盡顯簡約大氣之風。
隨著電子產品的普及,屋主不再以看電視作為單一的娛樂節目,因此考慮拿掉局部電視背景墻,空缺處設計成吧臺,使得廚房和客廳實現互通,男女主平時在家可以一邊做飯一邊聊天互動,也方便照看在客廳玩耍的小公主,這樣的感覺非常好。
這款灰色布藝沙發,是女主特意選擇的,舒適度極高,沒有炫麗的色彩,自帶恬靜優雅的氣質,背景墻的抽象藝術壁畫,讓空間更生動有趣。
茶幾的設計非常獨特,盡顯線條和平面的美感,實木和素水泥板的搭配,個性十足,桌面上的玻璃瓶插花,注入幾分田園氣息。
軟裝搭配更多的是自由、隨性,屋主說這才是家的感覺,怎么舒適怎么來。
餐廳
當下最流行的客餐一體設計,讓空間更顯通透,原木餐桌和餐椅,與客廳遙相呼應。
餐廳墻面全部以白色乳膠漆進行填充,墻體內凹依勢打造餐邊柜,兼具展示和收納的功能,非常實用。
精致的餐具,體現出女主對美好生活的追求,北歐實木餐椅,人性化的設計,非常惹人喜歡,女主說這款餐椅入座率可是很高的哦。
廚房
廚房的搭配以經典黑白灰為主,墻面鋪設了白色小方磚,方便清理油污,地面的黑色地磚非常耐臟;兩側打造成“二”字形櫥柜,不同色澤的門板,豐富了空間層次,側面設計了一個儲物間,用于收納雜物什么的,屋主認為很有必要。
兒童房
家有小公主,兒童房必須就要選用活潑的色彩啦,但是由于寶寶還小,尚未單獨居住,考慮到之后還要根據孩子的喜好重新進行布置,因此目前的家裝就比較簡單。
女主喜歡原木家居,總是讓她不經意想起老家的一桌一椅,一草一木,那是內心深處最美好的情結,特意在網上選購了一個原木置物架,擺放一些飾品物件和綠植盆栽,滿是生活小情調。
小公主的衣柜也是網上淘來的,選材安全環保,質感和質量還不錯,鏤空的柜門很有設計感,就像童話世界里的城堡。
書房
書房是男主使用頻率最高的地方,私人訂制的原木書架與書桌,適當加入抽屜的設計,讓空間飽和度剛剛好,豐富的藏書,可以看出男主廣泛的閱讀愛好,“腹有詩書氣自華”,想必男主一定有著優雅的人格魅力吧。
主臥
主臥和書房之間采用了可滑動的長虹玻璃門進行隔斷,往里看去,榆木的床,素色的床品,淡雅干凈。
簡單清透的設計,讓人眼前從心底感到舒服,雙側配置的長吊燈,填補了縱向空間的空白,呈現出對稱的美感。
背景墻選用一副圓形的云霧山林畫進行裝飾,神秘開闊的意境,讓人想到詩和遠方。
衛生間
衛生間以黑白為主色調,六角蜂窩地磚讓空間靈動起來,洗浴組合柜也是一并網淘來的,時尚大氣,半透磨砂玻璃滑門將空間干濕區分隔開,這已成為家裝的一種主流設計,頗得人心。
陽臺
陽臺是家居里最接近大自然的地方,不好好利用怎么行呢,女主可是種花小能手,特意在墻面上設計了洞洞板,用于稍后蓄養一些多肉植物。
陽光透過紗簾灑入,輕撫著這些“小家伙”,安靜祥和。
說在后面
本案的這套家居,從客餐廳到臥室,皆合理地貫穿使用了原木元素,這是讓屋主非常滿意的設計之一,隨性自然的軟搭,巧妙地輔助利用不同色調,打造出豐富的空間層次感,讓整個家居簡約,但不單調,該有的韻味,一絲都不少,這樣的家裝,性價比非常高,喜歡的朋友,可以大膽參考起來,驚喜總在不經意之間。
愛空間全國有1000多位設計師,幫你全屋設計。如有需求,可聯系設計顧問,1對1講解量房設計,溝通定制方案,切實做到設計的真實效果及實用性完美結合。









